Ferienwohnungen von Primitivo Gonzalez bei Valladolid
Bild 13/15
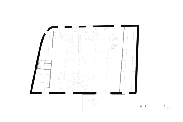
Grundriss
Bild: estudio González arquitectos