Die Meldung in Bildern
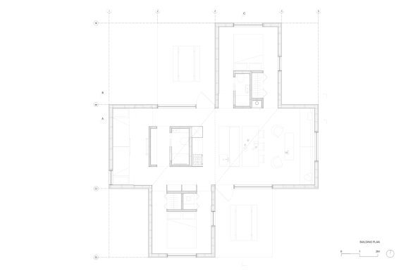
Hütten-Remix in Norwegen
Ferienhaus von Mork-Ulnes Architects bei Oslo
Bild 13/17
Bild: Mork-Ulnes Architects