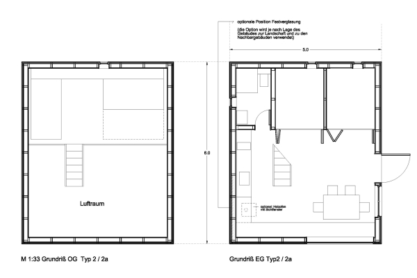
Eine Anerkennung: Kühne + Schultz-Granberg, Berlin, Grundriss Haustyp 2

Bild 25/42

Eine Anerkennung: Kühne + Schultz-Granberg, Berlin, Grundriss Haustyp 2

Bild: Kühne & Schultz-Granberg