Bild 18/42
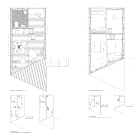
3. Preis: Amunt Martenson, Aachen, und Leonard Wertgen, Berlin, Grundriss
Bild: Amunt Martenson und Leonard Wertgen
Bild 18/42
3. Preis: Amunt Martenson, Aachen, und Leonard Wertgen, Berlin, Grundriss
Bild: Amunt Martenson und Leonard Wertgen