Die Meldung in Bildern
Mystisch im Morgennebel
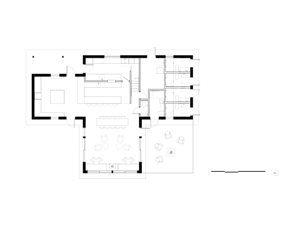
Ferienanlage in der Provinz Quebec von Atelier L’Abri
Bild 23/26
Bild: Atelier L'Abri