Die Meldung in Bildern
Aula als Subtext
Fassadensanierung in Hannover
Bild 13/17
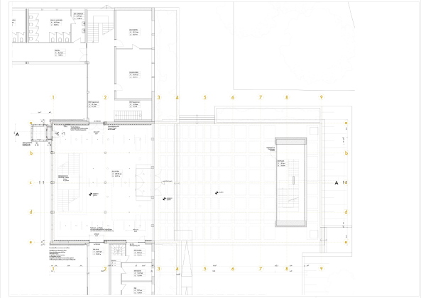
Grundriss Erdgeschoss