Die Meldung in Bildern
Erholen mit Rutsche
Familienhotel bei Peking von Fon Studio
Bild 47/51
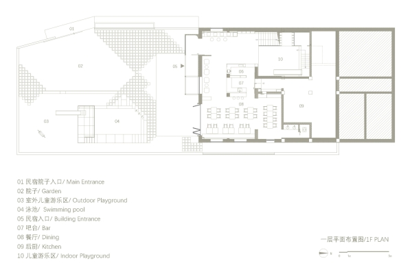
Grundriss Erdgeschoss
Bild: Fon Studio