Fakultätsgebäude bei Mailand von Filippo Taidelli Architetto
Bild 27/29
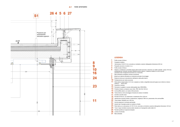
Detailschnitt Doppelfassade
Bild: Filippo Taidelli Architetto