Die Meldung in Bildern
Drückbank statt Druckpresse
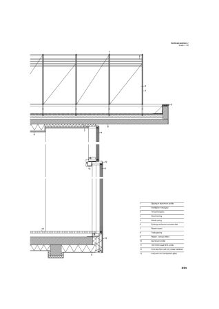
Fabrikumbau in Ljubljana von OFIS Arhitekti
Bild 22/32
Bild: OFIS Arhitekti