Die Meldung in Bildern
Kartons im Raster
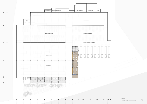
Fabrikerweiterung in Alicante von Estudio Alberto Burgos
Bild 17/25
Bild: Estudio Alberto Burgos