Die Meldung in Bildern
Im Hochwassergebiet
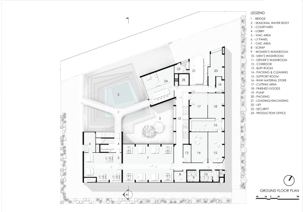
Fabrik von sP+a in Indien
Bild 29/32
Grundriss: Erdgeschoss