Bild 15/27
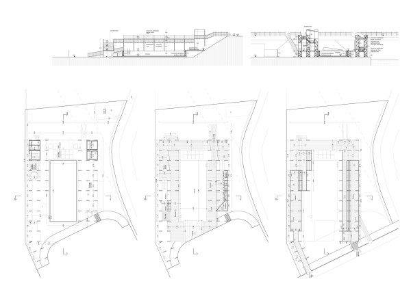
Anerkennung: FLOW von Decoratelier Jozef Wouters. Grundrisse, Ansicht und Schnitt
Bild: Decoratelier Jozef Wouters
Bild 15/27
Anerkennung: FLOW von Decoratelier Jozef Wouters. Grundrisse, Ansicht und Schnitt
Bild: Decoratelier Jozef Wouters