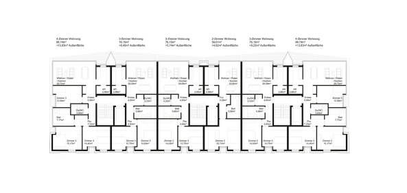
„Haus am Wasser“, Ein 3. Preis: KSP Jürgen Engel Architekten

Bild 34/38

„Haus am Wasser“, Ein 3. Preis: KSP Jürgen Engel Architekten

Bild: KSP Jürgen Engel Architekten