Erweiterung von Meixner Schlüter Wendt in Offenbach
Bild 13/15
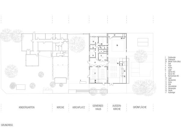
Grundriss
Bild: Meixner Schlüter Wendt