Die Meldung in Bildern
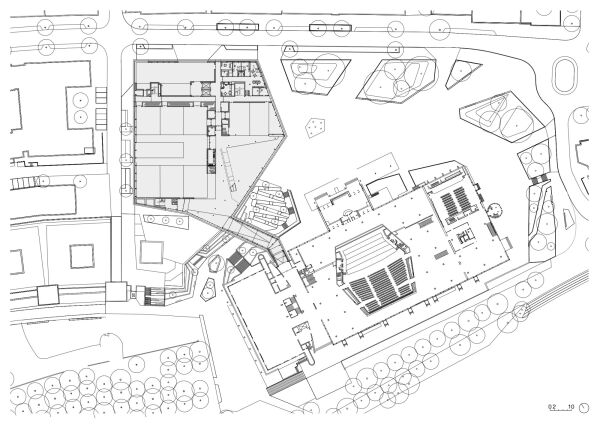
Polygon für die Congresshalle
Erweiterung in Saarbrücken geplant
Bild 8/13
Grundriss Erdgeschoss
Bild: kadawittfeldarchitektur