Erweiterung in Askeby von pihlmann architects
Bild 31/38
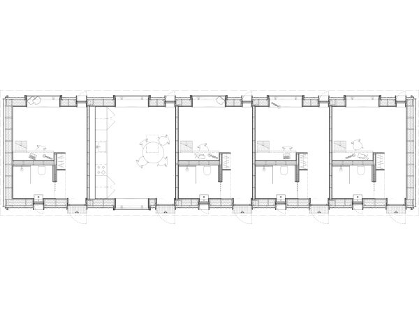
Grundriss Residency
Bild: pihlmann architects