Die Meldung in Bildern
Robuster Rahmen für die Kunst
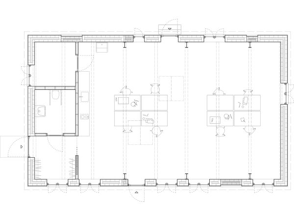
Erweiterung in Askeby von pihlmann architects
Bild 29/38
Grundriss Studio
Bild: pihlmann architects