Die Meldung in Bildern
Ferien in Beton
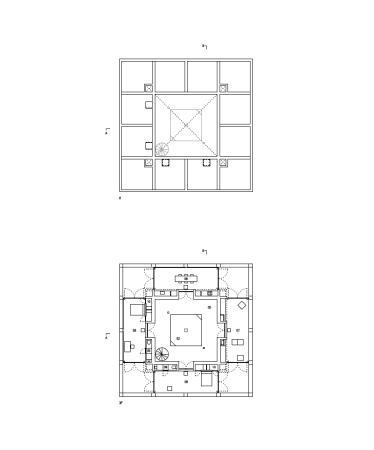
Erstes Solo House in Spanien fertig
Bild 13/17