Die Meldung in Bildern
Zeitschichten am Augustusplatz
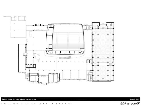
Erick van Egeraats Universitätskirche in Leipzig eröffnet
Bild 19/27
Bild: Design Erick van Egeraat