Die Meldung in Bildern
Mixed-Use am Bahnhof
Ensemble von RAUM Architectes in Nantes
Bild 16/18
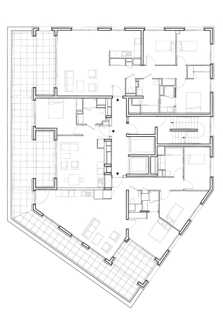
Grundriss 11. Obergeschoss
Bild: RAUM Architectes