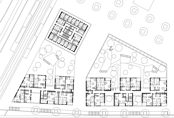
Ensemble von Dietrich Untertrifaller Architekten
Bild 25/29
Grundriss 1. Obergeschoss
Bild: Dietrich | Untertrifaller Architekten