Die Meldung in Bildern
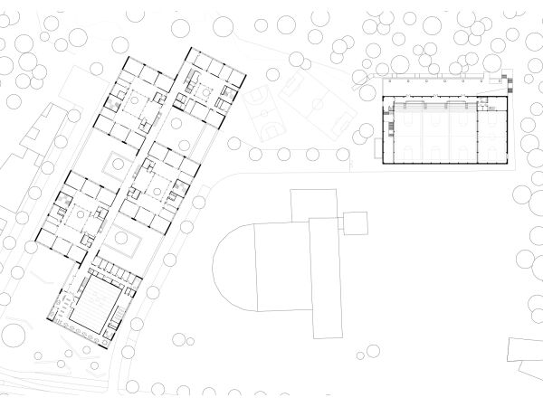
Schulstraße am Wasseramselweg
Ensemble in Köln von v-architekten
Bild 16/23
1. Obergeschoss
Bild: v-architekten