Ensamble Studio, Brookline, Brookline Massachusetts, Leichtbau, Bauschaum, foam, seel structure, Stahlgerüst, Einfamilienhaus, single family house, Aufstockung, Umbau, reorganisation, extension, architecture film, construction process, Bauprozess, Architekturfilm, Madrid, pre-fabrication, Vorfertigung, Allraum

Bild 24/29

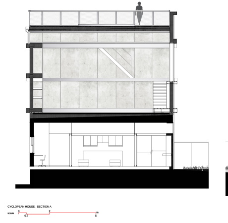
Schnitt

Bild: Ensamble Studio