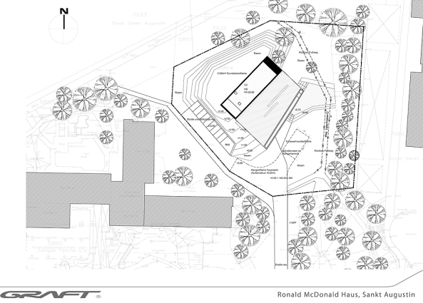
Glas, Riegel, Wohntrakt, Rampe, Kinderklink, Hospital, kids, nursierey, parents, playing, ramp, cutting, Schlitze, Paneele

Bild 12/13