Die Meldung in Bildern
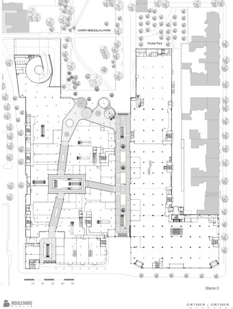
Boulevard Berlin
Einkaufszentrum von Ortner und Ortner fertig
Bild 7/11
Ebene 0
Bild: Ortner & Ortner Baukunst