Die Meldung in Bildern
Luftig in Eindhoven
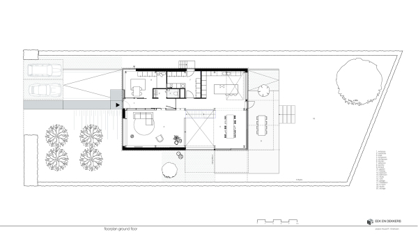
Einfamilienhaus von Eek en Dekkers
Bild 10/13
Erdgeschoss
Bild: Eek en Dekkers