Einfamilienhaus von Degelo Architekten bei Basel
Bild 18/20
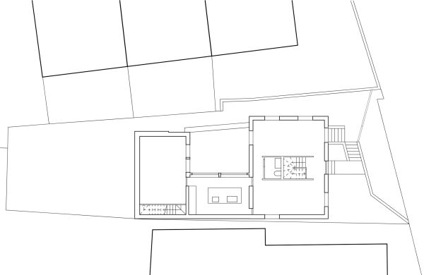
Grundriss Erdgeschoss
Bild: Degelo Architekten