Die Meldung in Bildern
Mit Satteldach und Kreis
Einfamilienhaus von Curious About in der Pfalz
Bild 16/22
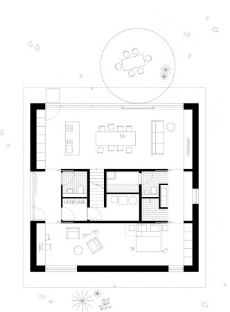
Grundriss Erdgeschoss
Bild: Curious About