Die Meldung in Bildern
Spuren im Garten
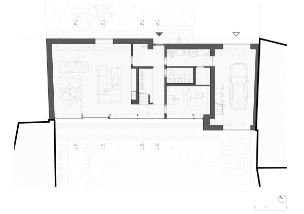
Einfamilienhaus von CL3 bei Brünn
Bild 23/26
Grundriss Erdgeschoss
Bild: cl3