Die Meldung in Bildern
Quadratisch, praktisch, Holz
Einfamilienhaus in Vorarlberg von firm Architekten
Bild 16/20
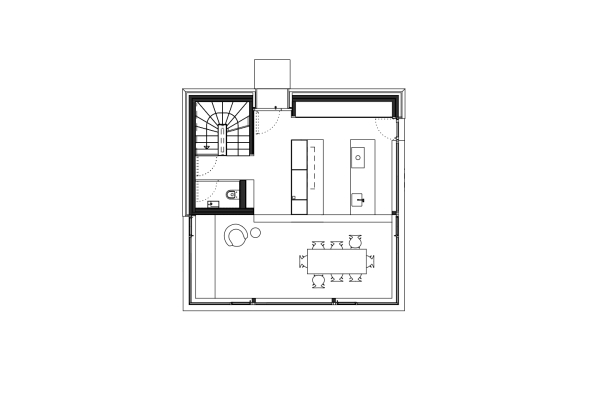
Grundriss EG
Bild: firm Architekten