Einfamilienhaus in Prag von Martin Neruda Architektura
Bild 30/35
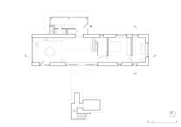
Erdgeschoss mit Garage
Bild: Martin Neruda Architektura