Die Meldung in Bildern
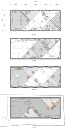
Wohnen auf der Treppe
Einfamilienhaus in Osaka von Tato Architects
Bild 20/21
Bild: Tato Architects