Einfamilienhaus in London von Knox Bhavan Architects
Bild 19/24
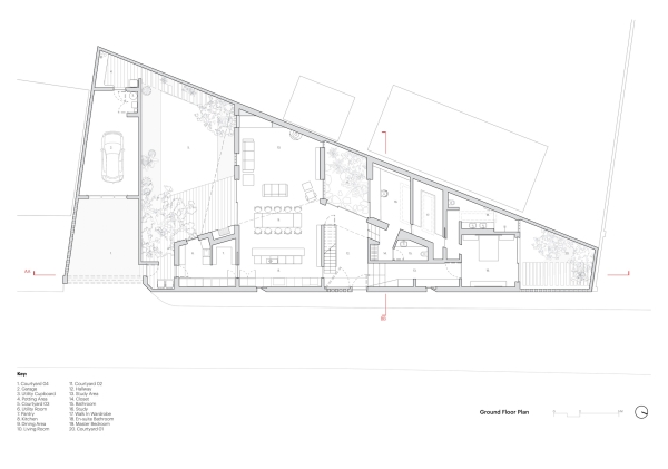
Grundriss EG
Bild: Knox Bhavan Architects