Die Meldung in Bildern
Von Säulen und Referenzen
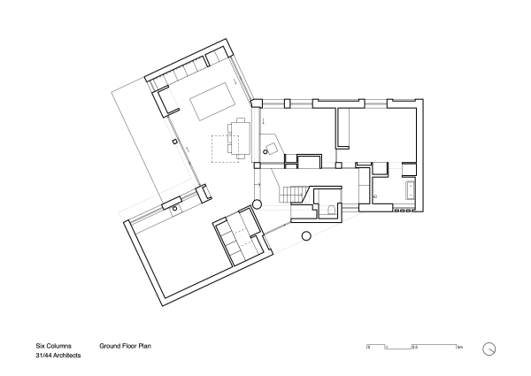
Einfamilienhaus in London von 31/44
Bild 19/23
Grundriss EG
Bild: 31/44 Architects