Einfamilienhaus in Hamburg von Stern Zürn Architekten
Bild 34/37
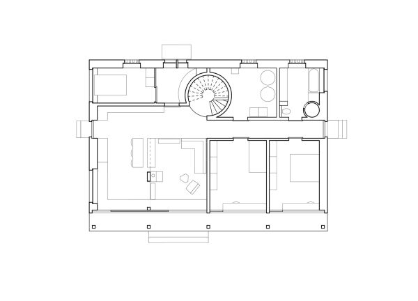
Grundriss Erdgeschoss
Bild: Stern Zürn Architekten