Die Meldung in Bildern
Holz hinter Kalkputz
Einfamilienhaus in Berlin von Atelier ST
Bild 19/21
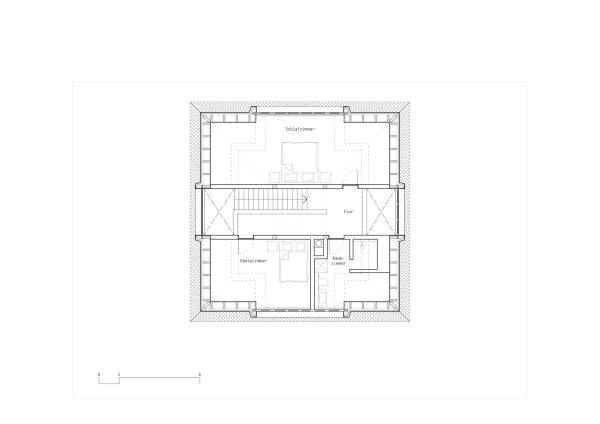
Grundriss Dachgeschoss
Bild: Atelier ST