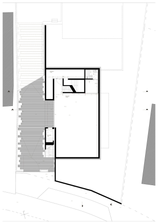
Einfamilienhaus in Arrifana von Pedro Henrique
Bild 27/30
Grundriss Untergeschoss
Bild: Pedro Henrique Arquitecto