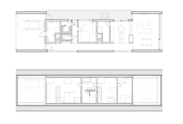
Neubau; Wohnhaus; Saarland; Ortsrand; Bayer & Strobel Architekten; Holzhaus; Holzrahmenbauweise; Faserzement-Wellplatten; landwirtschaftliches Bauen; Woodframehouse; Wood; Architecture; Ottweiler;

Bild 11/13

Bild: Bayer und Strobel Architekten