Die Meldung in Bildern
Aussicht und Zuflucht
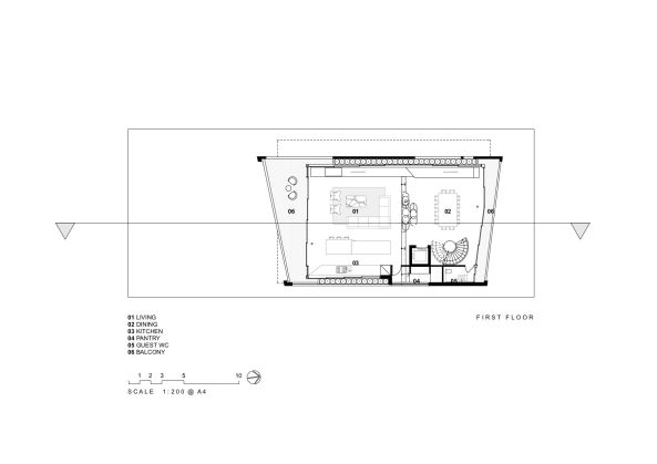
Einfamilienhaus bei Sydney
Bild 13/14