Einfamilienhäuser von Atelier Janda Vanderghote in Gent
Bild 22/26
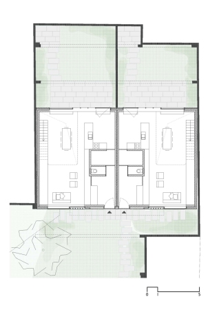
Grundriss, Umbau im Innenhof, Erdgeschoss
Bild: Atelier Janda Vanderghote