Ein Gemeindehaus im unterfränkischen Gerolzhofen
Bild 10/11
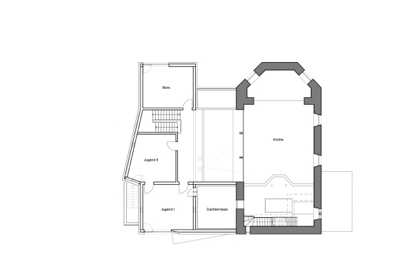
Grundriss Obergeschoss
Bild: Architektur Büro Jäcklein