Neubau für Naturhistorisches Museum und Staatsarchiv Basel-Stadt, EM2N gewinnen Wettbewerb in Basel, Mathias Müller Daniel Niggli Architekten AG Zürich, competition, Museumsbau, Sammlung, Archiv, Region Basel, ZASAMANE, St. Johann, Stadtplanung, Stadtentwicklung, Thomas Blanckarts, Hochbauamt Basel, Kultur in Basel, Jury, Preisgericht, Neubau, Bauvorhaben, swiss architects, Schweizer Architektur, Ciriacidis Lehnerer Architekten, Caruso St John Architects, Zürich, LIN Labor Gesellschaft von Architekten MBH, Berlin, LIN, LIA; Finn Geipel, Ortner & Ortner Baukunst / Caretta + Weidmann Generalplaner AG, Berlin, Barozzi / Veiga, Chur, Diller Scofidio + Renfro, BIG, Tatiana Bilbao, BIG, Bjarke Ingels, Museumswettbewerb, Buchner Bründler, Gigon/Guyer, Christian Kerez, Büros Miller & Maranta, Architekt Krischanitz, Harry Gugger Studio, HHF Architekten, Johnston Marklee, MADE IN, Mathias Müller und Daniel Niggli, Wettbewerbergebnisse im Baunetz, siegerentwurf, competition results, Preisgericht, Juryurteil, Wettbewerbe gewinnen, Neubau, Projektwettbewerb, Staatsarchiv Basel, anonymer Wettbewerb, Emanuel Christ, Roger Diener und Barbara Holzer, Baunetzwoche, Baunetz, Baunetz-Meldung, Schweiz im Baunetz

Bild 64/66

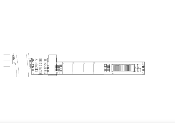
6. Rang/5. Preis: „Voyager“ von Barozzi / Veiga, Chur

Bild: Barozzi / Veiga