Bild 18/26
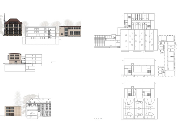
3. Preis: Bünzli + Courvoisier Architekten mit BGS + Partner Architekten
Bild: Bünzli + Courvoisier Architekten mit BGS + Partner Architekten
Bild 18/26
3. Preis: Bünzli + Courvoisier Architekten mit BGS + Partner Architekten
Bild: Bünzli + Courvoisier Architekten mit BGS + Partner Architekten