Drescher Michalski Architekten in Karlsruhe
Bild 28/33
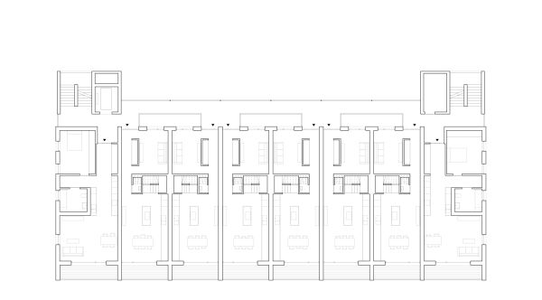
Grundriss 2. aufgestocktes Geschoss
Bild: Drescher Michalski Architekten