Die Meldung in Bildern
Rundbogenfenster und japanische Einflüsse
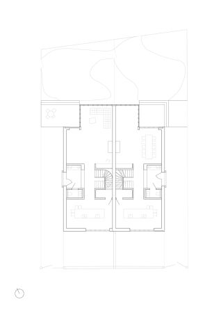
Doppelhaus von Nidus in Düsseldorf
Bild 19/23
Grundriss Erdgeschoss
Bild: Nidus