Die Meldung in Bildern
Hamburger Sommerbrise
Doppelhaus von NOTO
Bild 17/24
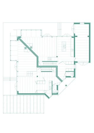
Grundriss Erdgeschoss
Bild: NOTO