Die Meldung in Bildern
Goldene Wohnbühne
Didier Faustino in Portugal
Bild 23/29
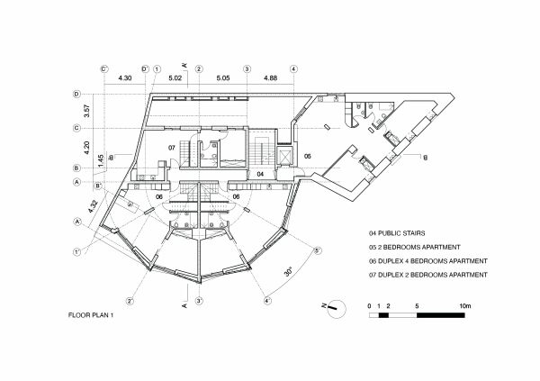
Grundriss 1. Obergeschoss
Bild: Bureau des Mésarchitectures