Bild 14/24
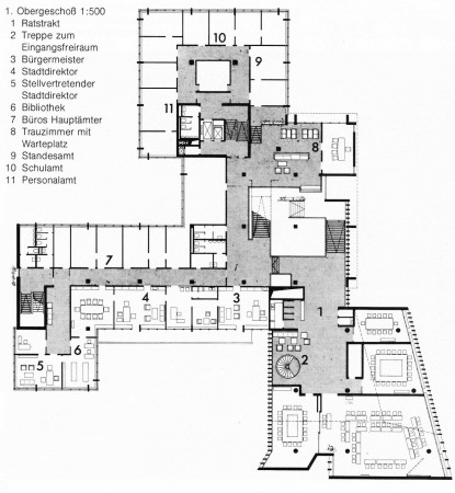
Grundriss 1. Obergeschoss, aus: H. und A. Deilmann: Gebäude für die Öffentliche Verwaltung, 1979, S. 72-75 © Verlagsanstalt Alexander Koch
Bild: siehe Bildunterschrift
Bild 14/24
Grundriss 1. Obergeschoss, aus: H. und A. Deilmann: Gebäude für die Öffentliche Verwaltung, 1979, S. 72-75 © Verlagsanstalt Alexander Koch
Bild: siehe Bildunterschrift