Die Meldung in Bildern
Fun Palace im Rohzustand
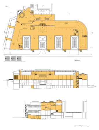
Das Pariser Palais de Tokyo wird erweitert
Bild 13/22