Die Meldung in Bildern
Über dem Diözesanmuseum
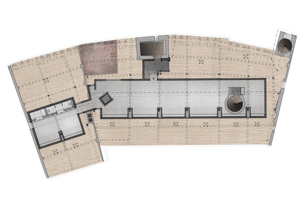
Dachausbau in Olomouc von Sepka architekti
Bild 33/36
Grundriss
Bild: Šépka architekti